- Three Bedroom Townhouse
- Gated Car Port
- Balcony with Marina Views
- Electric Heating
- No Forward Chain
- South Facing Aspect
- 11 Metre Mooring at End of Garden
- Double Glazing Throughout
- Lovely Open Marina Views
- Two Bathrooms
Full Description
This 3-bedroom townhouse has a coveted south-facing orientation with marina views and is offered with car port and 11 metre mooring at the end of the garden. Situated in Coverack Way, it is ideally located for the marina, bars, restaurants, cinema and David Lloyd leisure centre. Offered with No Forward Chain!
OVERVIEW Three bedroom South facing townhouse with car port, driveway parking and 11 metre mooring at the end of the garden, situated in Coverack Way Port Solent. This property has stunning open views across the marina fairway from the rear garden and balcony and is offered with no forward chain.
Coverack Way is ideally situated within walking distance to the bars and restaurants at The Boardwalk, The Odeon cinema and the David Lloyd leisure centre.
Port Solent is conveniently positioned offering easy access to the M27 and M275 motorways and also Portchester train station.
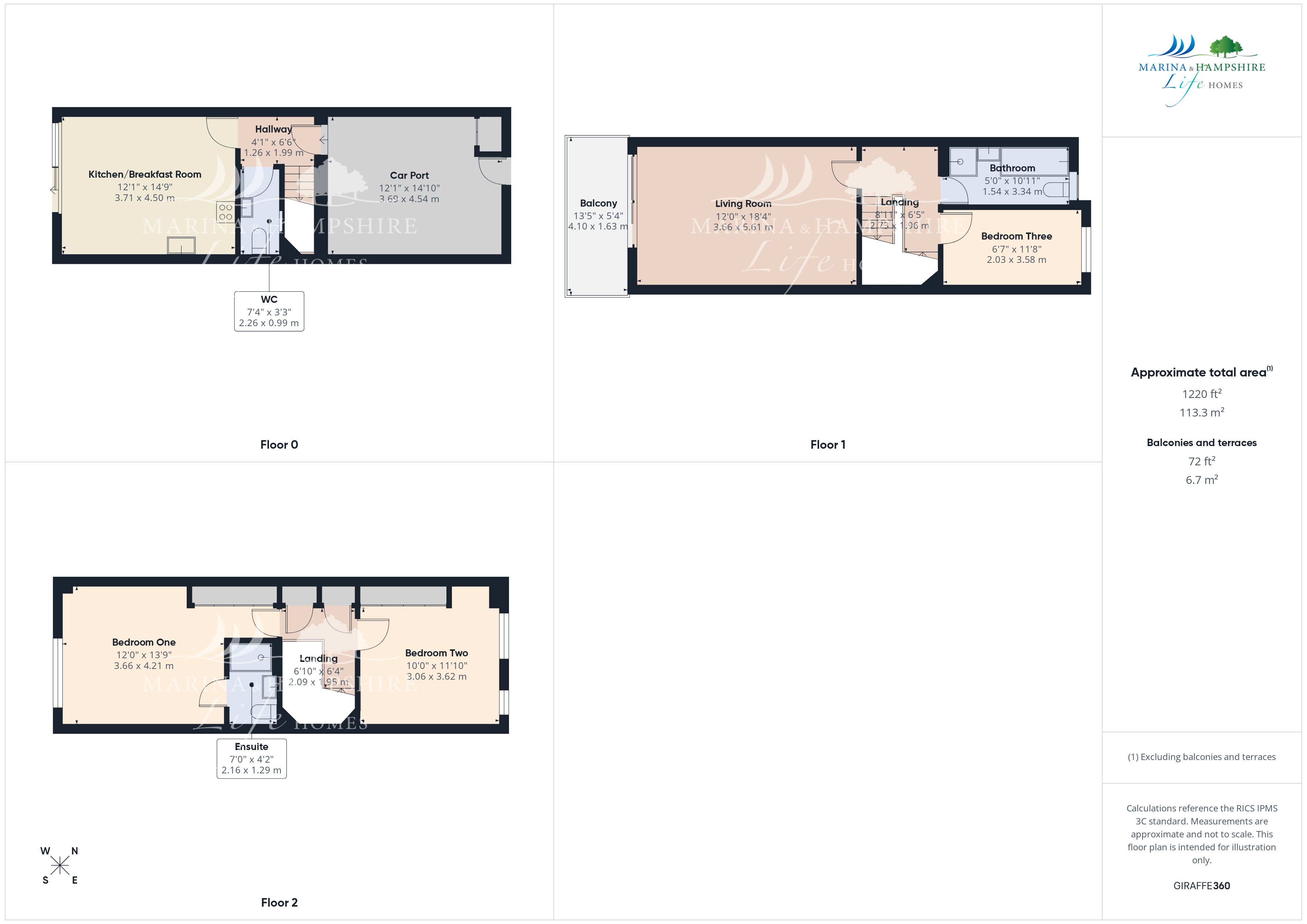
ROOM MEASUREMENTS CAR PORT - 3.69m x 4.54m (12' 1" x 14' 10")
ENTRANCE HALL - 1.26m x 1.99m (4'11" x 6' 6")
CLOAKROOM - 2.26m x 0.99m (7' 4" x 3' 3")
KITCHEN/BREAKFAST ROOM - 3.71m x 4.50m (12' 1" x 14' 9")
FIRST FLOOR LANDING - 2.73m x 1.96m (8' 11" x 5' 5")
LIVING ROOM - 3.66m x 5.61m (12' 0" x 18' 4")
BALCONY - 4.10m x 1.63m (13' 5" x 5' 4")
BEDROOM THREE - 2.03m x 3.58m (6' 7" x 11' 8")
BATHROOM - 1.54m x 3.34m (5' 0" x 10' 11")
SECOND FLOOR LANDING - 2.09m x 1.95m (6' 10" x 6' 4")
BEDROOM TWO - 3.06m x 3.62m (10' 0" x 11' 10")
BEDROOM ONE - 3.66m x 4.21m plus entrance (12' 0" x 13' 9")
ENSUITE - 2.16m x 1.29m (7' 0" x 4' 2")
REAR GARDEN
11 METRE MOORING
PROPERTY DESCRIPTION This 3-bedroom townhouse has a coveted south-facing orientation ensuring the property is filled with natural light throughout the day, creating an inviting and warm atmosphere. Step outside and you're treated to uninterrupted views of the marina, visible from both your private garden and first floor balcony.
Inside, the home is thoughtfully designed with spacious rooms, perfect for everything from family dinners to quiet evenings by the water. Whether you're entertaining guests or enjoying a peaceful retreat, this property offers the best of both worlds.
On the ground floor there is a spacious kitchen/breakfast room, designed to offer plenty of space for a table and chairs to entertain family and friends. The kitchen is fitted with a range of wall and floor units and includes built in induction hob, oven and microwave, fridge/freezer and dishwasher and from the sliding patio doors you can easily access the rear garden and mooring. Also on this ground floor level, you will find a useful cloakroom where the plumbing for the washing machine is also fitted.
On the first floor there is the family bathroom, bedroom 3 which can be used as a bedroom or an office, and the large living room. From the living room you can open the patio doors to the balcony, where you can sit and enjoy the sunshine and watch the boats go by!
The 2nd floor has 2 cupboards on the landing for storage and the large main bedroom with ensuite shower room. Bedroom two is also a double and both rooms are fitted with built in wardrobes providing ample storage.
Outside there is a patio garden laid to patio slabs and shingle and for those with a love for the water, the 11-meter mooring at the end of your garden offers direct access to the water for your boat or yacht, just steps from your door. Whether you're setting off for a day on the waves or simply enjoying the tranquility of the marina, it's all right here.
The carport and driveway parking ensure that your vehicles are just as well cared for, providing ample space for convenience and security.
This is more than a place to live - it's a haven for those seeking a waterside home with the convenience of being able to moor your boat on your doorstep!
Call today to arrange your viewing.
MATERIAL INFORMATION - Price (£) - £625,000
- Tenure - Freehold for House
- Leasehold for Mooring
- Length of Lease on Mooring (years remaining) - 113 Years
- Annual Estate Management Charge (£) 1064.84 for house(reviewed February, yearly)
- Annual mooring service charge amount (£) 455.47
- Mooring Service Charge Review Period - February Annually
- Council tax band (England, Wales and Scotland) - Band F
- 100% of the ownership of the property being sold
- Mains Water Supply
- Mains Electricity
- Heating - Ceiling Heating Panels
- Broadband - Fibre available
- Parking- Car Port and Driveway parking
- Construction- Brick and timber frame
- Mobile Signal/Coverage- ADSL Fibre Checker (openreach.com)
- Restrictions- Subject to Management Company covenants
- Flooding - Refer to (GOV.UK (check-long-term-flood-risk.service.gov.uk)
- Accessibility - Accommodation arranged over 3 floors
Stamp Duty Land Tax
Land Registration Fees
Solicitors Fees and Disbursements
We strongly recommend you calculate the total costs of your property purchase to be sure of affordability.
VIEWING BY APPOINTMENT ONLY THROUGH MARINA AND HAMPSHIRE LIFE HOMES All measurements quoted are approximate and are for general guidance only. The fixtures and fittings, services and appliances have not been tested and therefore no guarantee can be given that they are in working order. These particulars are believed to be correct, but their accuracy is not guaranteed and therefore they do not constitute an offer or contract.
Viewing
Please contact us on 02392 373446 if you wish to arrange a viewing appointment for this property, or require further information.
Energy Performance Certificate
Click here to view the Energy Efficiency Rating and Environmental Impact Rating for this property.
Disclaimer
Marina Life Homes endeavour to maintain accurate depictions of properties in Virtual Tours, Floor Plans and descriptions, however, these are intended only as a guide and purchasers must satisfy themselves by personal inspection.
OVERVIEW Three bedroom South facing townhouse with car port, driveway parking and 11 metre mooring at the end of the garden, situated in Coverack Way Port Solent. This property has stunning open views across the marina fairway from the rear garden and balcony and is offered with no forward chain.
Coverack Way is ideally situated within walking distance to the bars and restaurants at The Boardwalk, The Odeon cinema and the David Lloyd leisure centre.
Port Solent is conveniently positioned offering easy access to the M27 and M275 motorways and also Portchester train station.
ROOM MEASUREMENTS CAR PORT - 3.69m x 4.54m (12' 1" x 14' 10")
ENTRANCE HALL - 1.26m x 1.99m (4'11" x 6' 6")
CLOAKROOM - 2.26m x 0.99m (7' 4" x 3' 3")
KITCHEN/BREAKFAST ROOM - 3.71m x 4.50m (12' 1" x 14' 9")
FIRST FLOOR LANDING - 2.73m x 1.96m (8' 11" x 5' 5")
LIVING ROOM - 3.66m x 5.61m (12' 0" x 18' 4")
BALCONY - 4.10m x 1.63m (13' 5" x 5' 4")
BEDROOM THREE - 2.03m x 3.58m (6' 7" x 11' 8")
BATHROOM - 1.54m x 3.34m (5' 0" x 10' 11")
SECOND FLOOR LANDING - 2.09m x 1.95m (6' 10" x 6' 4")
BEDROOM TWO - 3.06m x 3.62m (10' 0" x 11' 10")
BEDROOM ONE - 3.66m x 4.21m plus entrance (12' 0" x 13' 9")
ENSUITE - 2.16m x 1.29m (7' 0" x 4' 2")
REAR GARDEN
11 METRE MOORING
PROPERTY DESCRIPTION This 3-bedroom townhouse has a coveted south-facing orientation ensuring the property is filled with natural light throughout the day, creating an inviting and warm atmosphere. Step outside and you're treated to uninterrupted views of the marina, visible from both your private garden and first floor balcony.
Inside, the home is thoughtfully designed with spacious rooms, perfect for everything from family dinners to quiet evenings by the water. Whether you're entertaining guests or enjoying a peaceful retreat, this property offers the best of both worlds.
On the ground floor there is a spacious kitchen/breakfast room, designed to offer plenty of space for a table and chairs to entertain family and friends. The kitchen is fitted with a range of wall and floor units and includes built in induction hob, oven and microwave, fridge/freezer and dishwasher and from the sliding patio doors you can easily access the rear garden and mooring. Also on this ground floor level, you will find a useful cloakroom where the plumbing for the washing machine is also fitted.
On the first floor there is the family bathroom, bedroom 3 which can be used as a bedroom or an office, and the large living room. From the living room you can open the patio doors to the balcony, where you can sit and enjoy the sunshine and watch the boats go by!
The 2nd floor has 2 cupboards on the landing for storage and the large main bedroom with ensuite shower room. Bedroom two is also a double and both rooms are fitted with built in wardrobes providing ample storage.
Outside there is a patio garden laid to patio slabs and shingle and for those with a love for the water, the 11-meter mooring at the end of your garden offers direct access to the water for your boat or yacht, just steps from your door. Whether you're setting off for a day on the waves or simply enjoying the tranquility of the marina, it's all right here.
The carport and driveway parking ensure that your vehicles are just as well cared for, providing ample space for convenience and security.
This is more than a place to live - it's a haven for those seeking a waterside home with the convenience of being able to moor your boat on your doorstep!
Call today to arrange your viewing.
MATERIAL INFORMATION - Price (£) - £625,000
- Tenure - Freehold for House
- Leasehold for Mooring
- Length of Lease on Mooring (years remaining) - 113 Years
- Annual Estate Management Charge (£) 1064.84 for house(reviewed February, yearly)
- Annual mooring service charge amount (£) 455.47
- Mooring Service Charge Review Period - February Annually
- Council tax band (England, Wales and Scotland) - Band F
- 100% of the ownership of the property being sold
- Mains Water Supply
- Mains Electricity
- Heating - Ceiling Heating Panels
- Broadband - Fibre available
- Parking- Car Port and Driveway parking
- Construction- Brick and timber frame
- Mobile Signal/Coverage- ADSL Fibre Checker (openreach.com)
- Restrictions- Subject to Management Company covenants
- Flooding - Refer to (GOV.UK (check-long-term-flood-risk.service.gov.uk)
- Accessibility - Accommodation arranged over 3 floors
Stamp Duty Land Tax
Land Registration Fees
Solicitors Fees and Disbursements
We strongly recommend you calculate the total costs of your property purchase to be sure of affordability.
VIEWING BY APPOINTMENT ONLY THROUGH MARINA AND HAMPSHIRE LIFE HOMES All measurements quoted are approximate and are for general guidance only. The fixtures and fittings, services and appliances have not been tested and therefore no guarantee can be given that they are in working order. These particulars are believed to be correct, but their accuracy is not guaranteed and therefore they do not constitute an offer or contract.
Viewing
Please contact us on 02392 373446 if you wish to arrange a viewing appointment for this property, or require further information.
Energy Performance Certificate
Click here to view the Energy Efficiency Rating and Environmental Impact Rating for this property.
Disclaimer
Marina Life Homes endeavour to maintain accurate depictions of properties in Virtual Tours, Floor Plans and descriptions, however, these are intended only as a guide and purchasers must satisfy themselves by personal inspection.

