- 4 Bedrooms
- Marina Side Garden
- Newly Fitted Kitchen/Dining Area
- Separate Cloakroom
- Newly Fitted Bathroom
- Drive and Carport Parking
- 11m Remote Mooring
- Balcony Overlooking The Marina
- Close to Boardwalk, Bars & Restaurants
- New Decor and Carpets Throughout
Full Description
Fantastic opportunity to purchase this 4 bedroom Townhouse which has been upgraded by the current owner to include newly fitted kitchen/breakfast, family/living room, bathroom and new decor and carpets. Situated in the desirable Bryher Island this home comes with a Westerly facing garden and 11m remote mooring situated just across from the front of the property. Call today to arrange your viewing!
OVERVIEW This delightful three/four bedroom townhouse is situated on the water and has recently been upgraded to the ground floor by the current owners to add a useful family/living room and contemporary kitchen/breakfast room. They have also refitted the first floor bathroom and freshly painted and carpeted the house throughout. Situated in the popular Bryher Island at Port Solent and has the added bonus of a remote 11 metre mooring, which is situated just across from the front of the property, via a secure gate.
Port Solent itself is a popular location, due to being well positioned for motorway networks and the nearby Portchester train station. There are a variety of shops and bars as well as a David Lloyd leisure centre and the Odeon cinema.
If you are a keen yachtsman the marina offers a 24 hour manned lock to ensure you can come in and out of the marina at your leisure.
Viewing is essential to appreciate all this home has to offer.
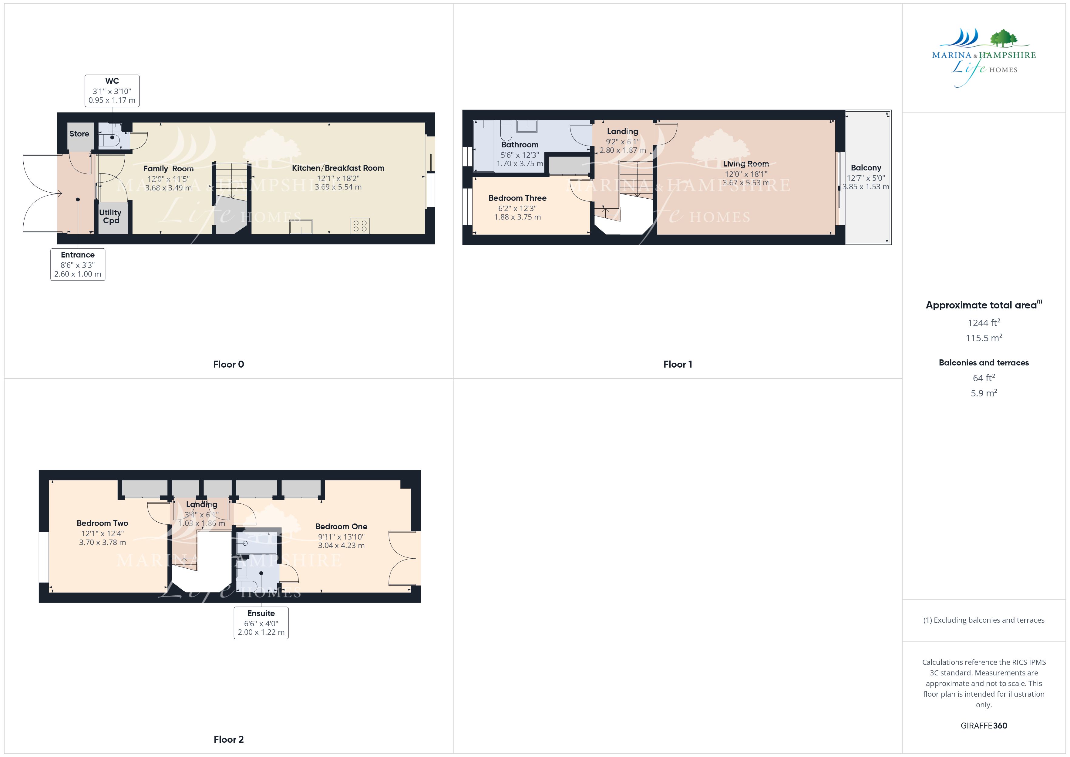
ROOM MEASUREMENTS Entrance - 2.60m x 1.0m (8' 6" x 3' 3")
Living/Family Room - 3.68m 3.49m (12' 0" x 11' 5")
Cloakroom - 0.95m x 1.17m (3' 1" x 3' 10")
Kitchen/Breakfast Room - 3.69m x 5.54m (12' 1" x 18' 2")
First Floor Landing - 2.80m x 1.87m (9' 2" x 6' 1")
Double Bedroom - 3.67m x 5.53m (12' 0" x 18' 1")
Balcony - 3.85m x 1.53m (12' 7" x 5' 0")
Bedroom 4 - 1.88m x 3.75m (6' 2" x 12' 3")
Family Bathroom - 1.70m x 3.75m (5' 6" x 12' 3")
Second Floor Landing - 1.03m x 1.86m (3' 4" x 6' 1")
Bedroom Three - 3.70m x 3.78m (12' 1" x 12' 4")
Main Bedroom - 3.04m x 4.23m (9' 11" x 13' 10")
Ensuite - 2.0m x 1.22m (6' 6" x 4' 0")
Rear Garden
11 Metre Mooring
PROPERTY DESCRIPTION This delightful town house has flexible accommodation arranged over 3 floors and the current owner has completed many upgrades to turn this into a beautiful home.
Situated in popular Bryher Island, which offers several additional residents parking areas and has a wide open feel to the road, this is one not to be missed!
You enter the property via the car port gates which have been fitted with wrought iron gates and smoked glass for additional security. Here you will find a useful store cupboard and outside water tap.
The owner has had a new contemporary style front door fitted which leads into a light and bright family/living room. There is a utility cupboard to house your washing machine and tumble dryer and a separate ground floor cloakroom.
The kitchen/breakfast room has been fitted with a range of grey gloss kitchen units with white marble effect worktops and offers built in appliances to include fridge/freezer, electric hob, Neff oven, microwave, dishwasher and wine cooler. As well as the breakfast bar, there is an additional space at the end of the kitchen for table and chairs. The ground floor is fitted with Karndean flooring and underfloor heating is provided.
From the kitchen you enter the garden via the sliding patio doors, to provide seamless transition from kitchen to garden - a great space to entertain family and friends. The house is situated on the water so you have great marina views from the garden.
On the first floor you will find two bedrooms, a large double bedroom which is a lovely light room with sliding patio doors leading out onto the West facing balcony. Across the landing there is a good size single bedroom with built in wardrobe and the newly fitted contemporary bathroom which is fitted with white suite with bath with rain shower fitted over, sink and WC inset into modern vanity unit, all finished with contemporary tiling.
On the second floor landing there are 2 useful storage cupboards - one housing the recently fitted hot water tank and two further bedrooms. Bedroom three is a good size double room with built in wardrobe to the front aspect of the property. The main bedroom has French doors leading to a Juliet balcony which offers views of the marina. A lovely size room with double built in wardrobe and ensuite shower room.
Across from the front of the property, through a secure gate, there is a remote 11 metre mooring with access to electricity and water.
MATERIAL INFORMATION - Price (£) - £650,000
- Tenure - Freehold for House
- Leasehold for Mooring
- Length of Lease on Mooring (years remaining) - 112 Years
- Annual Estate Management Charge (£) 1064.86 for house(reviewed February, yearly)
- Annual mooring service charge amount (£) 455.47
- Mooring Service Charge Review Period - February Annually
- Council tax band (England, Wales and Scotland) - Band G
- 100% of the ownership of the property being sold
- Mains Water Supply
- Mains Electricity
- Heating - Electric E7- Underfloor and Ceiling Heating
- Broadband - Fibre available
- Parking- Driveway and Carport
- Construction- Brick and timber frame
- Mobile Signal/Coverage- ADSL Fibre Checker (openreach.com)
- Restrictions- Subject to Management Company covenants
- Flooding - Refer to (GOV.UK (check-long-term-flood-risk.service.gov.uk)
-Accessibilty- On Three Levels
Stamp Duty Land Tax
Land Registration Fees
Solicitors Fees and Disbursements
We strongly recommend you calculate the total costs of your property purchase to be sure of affordability.
VIEWING BY APPOINTMENT THROUGH MARINA AND HAMPSHIRE LIFE HOMES ONLY All measurements quoted are approximate and are for general guidance only. The fixtures and fittings, services and appliances have not been tested and therefore no guarantee can be given that they are in working order. These particulars are believed to be correct, but their accuracy is not guaranteed and therefore they do not constitute an offer or contract.
Viewing
Please contact us on 02392 373446 if you wish to arrange a viewing appointment for this property, or require further information.
Energy Performance Certificate
Click here to view the Energy Efficiency Rating and Environmental Impact Rating for this property.
Disclaimer
Marina Life Homes endeavour to maintain accurate depictions of properties in Virtual Tours, Floor Plans and descriptions, however, these are intended only as a guide and purchasers must satisfy themselves by personal inspection.
OVERVIEW This delightful three/four bedroom townhouse is situated on the water and has recently been upgraded to the ground floor by the current owners to add a useful family/living room and contemporary kitchen/breakfast room. They have also refitted the first floor bathroom and freshly painted and carpeted the house throughout. Situated in the popular Bryher Island at Port Solent and has the added bonus of a remote 11 metre mooring, which is situated just across from the front of the property, via a secure gate.
Port Solent itself is a popular location, due to being well positioned for motorway networks and the nearby Portchester train station. There are a variety of shops and bars as well as a David Lloyd leisure centre and the Odeon cinema.
If you are a keen yachtsman the marina offers a 24 hour manned lock to ensure you can come in and out of the marina at your leisure.
Viewing is essential to appreciate all this home has to offer.
ROOM MEASUREMENTS Entrance - 2.60m x 1.0m (8' 6" x 3' 3")
Living/Family Room - 3.68m 3.49m (12' 0" x 11' 5")
Cloakroom - 0.95m x 1.17m (3' 1" x 3' 10")
Kitchen/Breakfast Room - 3.69m x 5.54m (12' 1" x 18' 2")
First Floor Landing - 2.80m x 1.87m (9' 2" x 6' 1")
Double Bedroom - 3.67m x 5.53m (12' 0" x 18' 1")
Balcony - 3.85m x 1.53m (12' 7" x 5' 0")
Bedroom 4 - 1.88m x 3.75m (6' 2" x 12' 3")
Family Bathroom - 1.70m x 3.75m (5' 6" x 12' 3")
Second Floor Landing - 1.03m x 1.86m (3' 4" x 6' 1")
Bedroom Three - 3.70m x 3.78m (12' 1" x 12' 4")
Main Bedroom - 3.04m x 4.23m (9' 11" x 13' 10")
Ensuite - 2.0m x 1.22m (6' 6" x 4' 0")
Rear Garden
11 Metre Mooring
PROPERTY DESCRIPTION This delightful town house has flexible accommodation arranged over 3 floors and the current owner has completed many upgrades to turn this into a beautiful home.
Situated in popular Bryher Island, which offers several additional residents parking areas and has a wide open feel to the road, this is one not to be missed!
You enter the property via the car port gates which have been fitted with wrought iron gates and smoked glass for additional security. Here you will find a useful store cupboard and outside water tap.
The owner has had a new contemporary style front door fitted which leads into a light and bright family/living room. There is a utility cupboard to house your washing machine and tumble dryer and a separate ground floor cloakroom.
The kitchen/breakfast room has been fitted with a range of grey gloss kitchen units with white marble effect worktops and offers built in appliances to include fridge/freezer, electric hob, Neff oven, microwave, dishwasher and wine cooler. As well as the breakfast bar, there is an additional space at the end of the kitchen for table and chairs. The ground floor is fitted with Karndean flooring and underfloor heating is provided.
From the kitchen you enter the garden via the sliding patio doors, to provide seamless transition from kitchen to garden - a great space to entertain family and friends. The house is situated on the water so you have great marina views from the garden.
On the first floor you will find two bedrooms, a large double bedroom which is a lovely light room with sliding patio doors leading out onto the West facing balcony. Across the landing there is a good size single bedroom with built in wardrobe and the newly fitted contemporary bathroom which is fitted with white suite with bath with rain shower fitted over, sink and WC inset into modern vanity unit, all finished with contemporary tiling.
On the second floor landing there are 2 useful storage cupboards - one housing the recently fitted hot water tank and two further bedrooms. Bedroom three is a good size double room with built in wardrobe to the front aspect of the property. The main bedroom has French doors leading to a Juliet balcony which offers views of the marina. A lovely size room with double built in wardrobe and ensuite shower room.
Across from the front of the property, through a secure gate, there is a remote 11 metre mooring with access to electricity and water.
MATERIAL INFORMATION - Price (£) - £650,000
- Tenure - Freehold for House
- Leasehold for Mooring
- Length of Lease on Mooring (years remaining) - 112 Years
- Annual Estate Management Charge (£) 1064.86 for house(reviewed February, yearly)
- Annual mooring service charge amount (£) 455.47
- Mooring Service Charge Review Period - February Annually
- Council tax band (England, Wales and Scotland) - Band G
- 100% of the ownership of the property being sold
- Mains Water Supply
- Mains Electricity
- Heating - Electric E7- Underfloor and Ceiling Heating
- Broadband - Fibre available
- Parking- Driveway and Carport
- Construction- Brick and timber frame
- Mobile Signal/Coverage- ADSL Fibre Checker (openreach.com)
- Restrictions- Subject to Management Company covenants
- Flooding - Refer to (GOV.UK (check-long-term-flood-risk.service.gov.uk)
-Accessibilty- On Three Levels
Stamp Duty Land Tax
Land Registration Fees
Solicitors Fees and Disbursements
We strongly recommend you calculate the total costs of your property purchase to be sure of affordability.
VIEWING BY APPOINTMENT THROUGH MARINA AND HAMPSHIRE LIFE HOMES ONLY All measurements quoted are approximate and are for general guidance only. The fixtures and fittings, services and appliances have not been tested and therefore no guarantee can be given that they are in working order. These particulars are believed to be correct, but their accuracy is not guaranteed and therefore they do not constitute an offer or contract.
Viewing
Please contact us on 02392 373446 if you wish to arrange a viewing appointment for this property, or require further information.
Energy Performance Certificate
Click here to view the Energy Efficiency Rating and Environmental Impact Rating for this property.
Disclaimer
Marina Life Homes endeavour to maintain accurate depictions of properties in Virtual Tours, Floor Plans and descriptions, however, these are intended only as a guide and purchasers must satisfy themselves by personal inspection.

